Давно на боку мой TS850.
Вчера вечером очередной раз ковырялся в его внутренностях.
Пропала мощность, выходной каскад иногда подает признаки жизни.
При включении мощность хаотично прыгает, потом пропадает.
Скорее всего причина в УМ, средний бинокль греется как утюг,
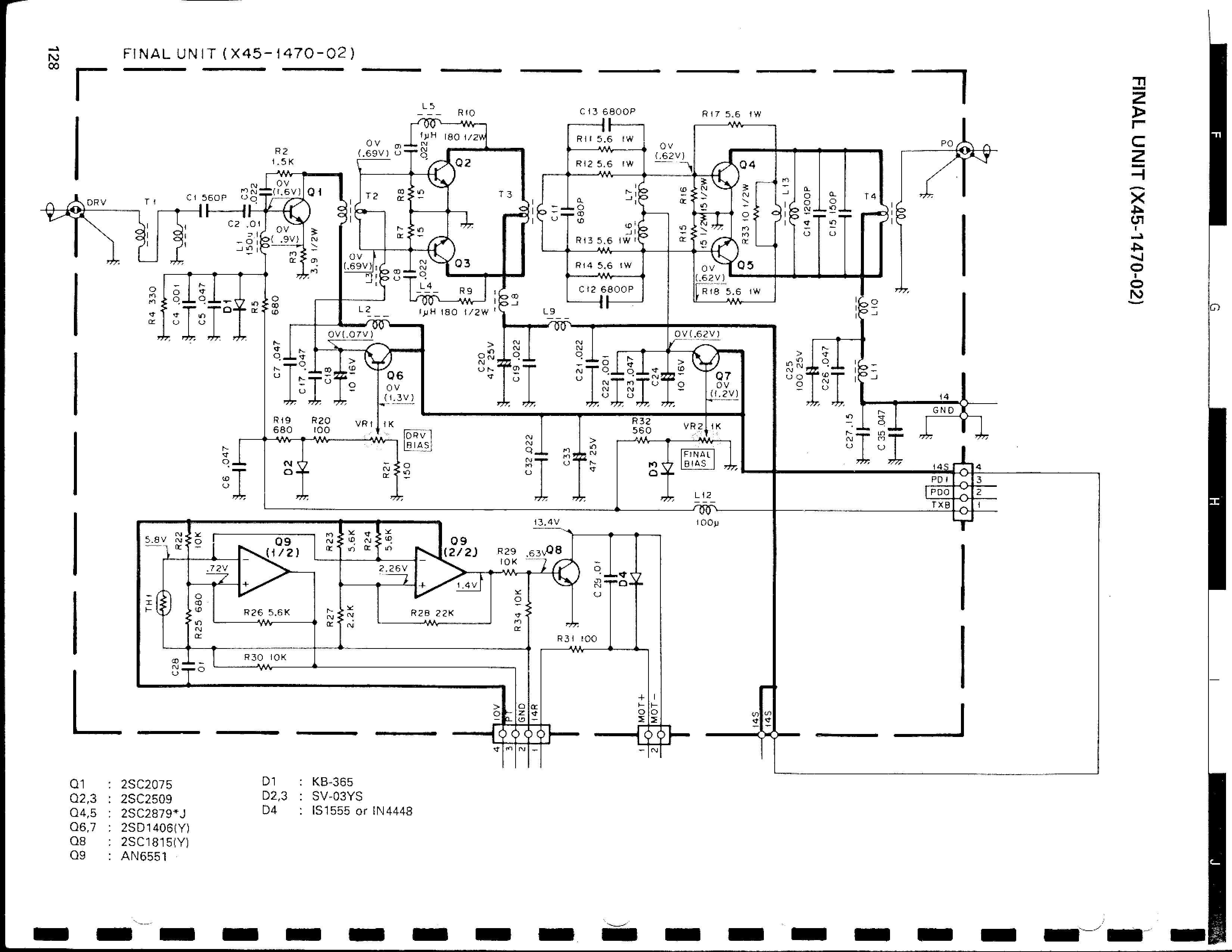
сначала подумал, что конденсатор на 6800, сегодня буду изучать схему.
Возможно кто то сталкивался с такой проблемой.
Ремонт TS-850
Ремонт TS-850
- Вложения
-
- Kenwood-TS-850S-TS850SAT-FINAL - копия.jpg (589 КБ) 83550 просмотров
Спасибо RD6LW, на сайте qrz.ru четко объяснил где искать причину:
Поставьте его на место и проверьте режимы УМ по сервис-мануалу. Обратите внимание на смещение выходных транзисторов.
Там особо ломаться нечему. Драйверный бинокль может греться в отсутствии нагрузки, т.е выходные транзисторы заперты.
Поставьте его на место и проверьте режимы УМ по сервис-мануалу. Обратите внимание на смещение выходных транзисторов.
Там особо ломаться нечему. Драйверный бинокль может греться в отсутствии нагрузки, т.е выходные транзисторы заперты.
Спасибо, я также нашел схему, плату я не снимал, бинокль греется и конденсатор на 680.
При включении трансивера мощность есть, потом наверно нагревается дергается и через какое то время пропадает.
Завтра после работы буду снимать плату и проверять.
Проверка также проводилась без платы контуров напрямую на эквивалент нагрузки.
На одну минуту выдавал полную мощность, потом снова все пропало.
Последнее сообщение было от LZ2HR -БОЛЬШОЕ СПАСИБО ЗА ОТВЕТ.
Здравствуйте EU1WW!
Смотрите индикатор ALC.
Если хаотично прыгает, то и мощность пропадает наоборот.
Нестабильное напряжение -6 волт в цепь ALC. плата (X59-1100-00)
Писали об этом раньше .
73 Успехов!
При включении трансивера мощность есть, потом наверно нагревается дергается и через какое то время пропадает.
Завтра после работы буду снимать плату и проверять.
Проверка также проводилась без платы контуров напрямую на эквивалент нагрузки.
На одну минуту выдавал полную мощность, потом снова все пропало.
Последнее сообщение было от LZ2HR -БОЛЬШОЕ СПАСИБО ЗА ОТВЕТ.
Здравствуйте EU1WW!
Смотрите индикатор ALC.
Если хаотично прыгает, то и мощность пропадает наоборот.
Нестабильное напряжение -6 волт в цепь ALC. плата (X59-1100-00)
Писали об этом раньше .
73 Успехов!
Как писал RD6LW проблема была в смещении, R15 по базе подгорел, холодная пайка.
Пропаял плату и все заработало стабильно.
RD6LW Спасибо!
ТРАНСИВЕР БЫЛ УСПЕШНО ОТРЕМОНТИРОВАН 8 МАРТА!
Реально просто не было времени, подняв плату стало ясно " где собака зарыта".
Положил новую пасту, теперь старичок снова в строю.
Пропаял плату и все заработало стабильно.
RD6LW Спасибо!
ТРАНСИВЕР БЫЛ УСПЕШНО ОТРЕМОНТИРОВАН 8 МАРТА!
Реально просто не было времени, подняв плату стало ясно " где собака зарыта".
Положил новую пасту, теперь старичок снова в строю.
- Вложения
-
- УМ TS850S 2.jpg (56.59 КБ) 83548 просмотров
Для ремонта трансивера на коллективке специально была изготовлена нагрузка- эквивалент 50 ом 120 вт.
- Вложения
-
- Эквивалент 4.jpg (154.13 КБ) 83546 просмотров
-
- Эквивалент 3.jpg (113.27 КБ) 83546 просмотров
-
- Эквивалент 2.jpg (198.21 КБ) 83546 просмотров
-
- Эквивалент 1.jpg (188.46 КБ) 83546 просмотров